2024 08 22 FINAL Outdoor 3 Kopie

026
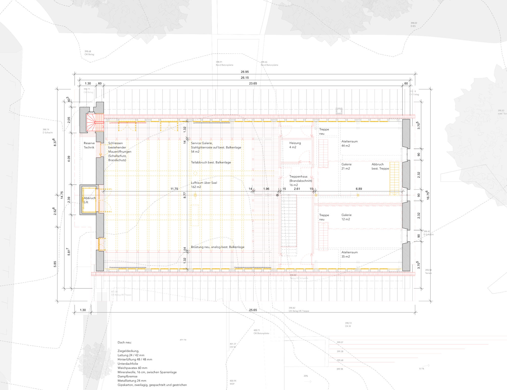
Kulturhaus Tommasini

Ort: Lenzburg, AG
Status: Phase 32; Bauprojekt
Zusammenarbeit: 2X2 ARCHITEKTEN, Lenzburg
Grösse: 1‘350 m² HNF
Jahr: 2024-2026
Bauherrschaft: Stadt Lenzburg
 
 
Holzbau-Ingenieur und Brandschutz: Makiol Wiederkehr AG
Bauingenieure: Franz Bitterli AG
Bauphysik: BAKUS Bauphysik und Akkustik AG
Haustechnik HLKS: WEGO Gebäudetechnik GmbH
Elektroplanung: Schäfer Partner AG
Kunst am Bau (Fassade): Jan Eichenberger

Das Tommasini-Kulturhaus ist eine Institution in Lenzburg. Ursprünglich als Färberei und Hanf-Seilerei in der Mitte des 19.Jahrhunderts gegründet konnte das Gebäude seine lebendige Geschichte bis heute bewaren. In den letzten 40 Jahren wurde dagegen nicht viel in den Unterhalt investiert. Ziel der Gesamt-Instandsetzung ist ein optimierter, vielseitiger und bedarfsgerechter Betrieb des Haues. Zudem wird die ursprüngliche Gebäudesubstanz freigelegt und sichtbar werden damit der industrielle Charakter gestärkt ist. Die Zugänglichkeit des Gebäudes wird verbessert und durchgängige Barrierefreiheit ermöglicht. Der neu geschaffene Saal zum Beispiel wird bezüglich Raumbelüftung auf 300 Personen ausgelegt.

Betriebskonzept

Die verschiedenen Akteure (der Verein Tommasini, die Jugendarbeit Lenzburg und der Theaterverein) bringen alle ihre spezifischen Bedürfnisse und Erwartungen mit, welche in mehreren Runden an einem runden Tisch geschärft werfen. Dieser Mediationsprozess war sehr spannend und zeichnet sich im Grundrisslayout erfolgreich ab.
Dabei war ein belastbarer Kostenvoranschlag in dieser frühen Phase zentral. Dieser konnte mithilfe lokaler Unternehmer und präzisen Richtofferten zielführend erreicht werden.