Modell 04

020
Wohnhaus Bergstrasse

Ort: Oberarth, SZ
Status: Planung
Mitarbeit: Georgios Kapsalidis, Florian Weber
Grösse: 435 m² HNF
Jahr: 2022
Bauherrschaft: Privat

Steht ein Haus trauf- oder giebelseitig an der Strasse? Im ländlichen Kontext von Oberarth gibt die direkte Umgebung des neuen Wohnhauses darauf keine Antwort. Es bedarf eine eigene Vorstellung dazu zu entwickeln. Die Suche nach einem Baukörper, dessen klare Ausrichtung Stellung bezieht und dadurch den Strassen- als auch den rückwärtigen Raum stärkt, steht im Zentrum des Entwurfes. Als Quelle der Inspiration dienten in diesem Projekt Werke aus der klassischen Moderne und aus der Nachkriegsmoderne.

Setzung

Basierend auf der Analyse der Bauten entlang der Bergstrasse bekennt sich der Entwurf mit einem ruhigen und selbstbewussten Volumen klar zur Strasse. Das Lärmschutzthema wird auf der grundrisslichen Ebene gelöst. Zusammen mit dem länglichen Volumen des östlichen Carports etabliert der neue Baukörper eine Komposition, welche trotz vollständiger Ausnutzung der sperrigen Parzelle angemessen wirkt. Das Attikageschoss ist integraler Bestandteil der Gesamtheit und unterstützt damit die städtebauliche Setzung.

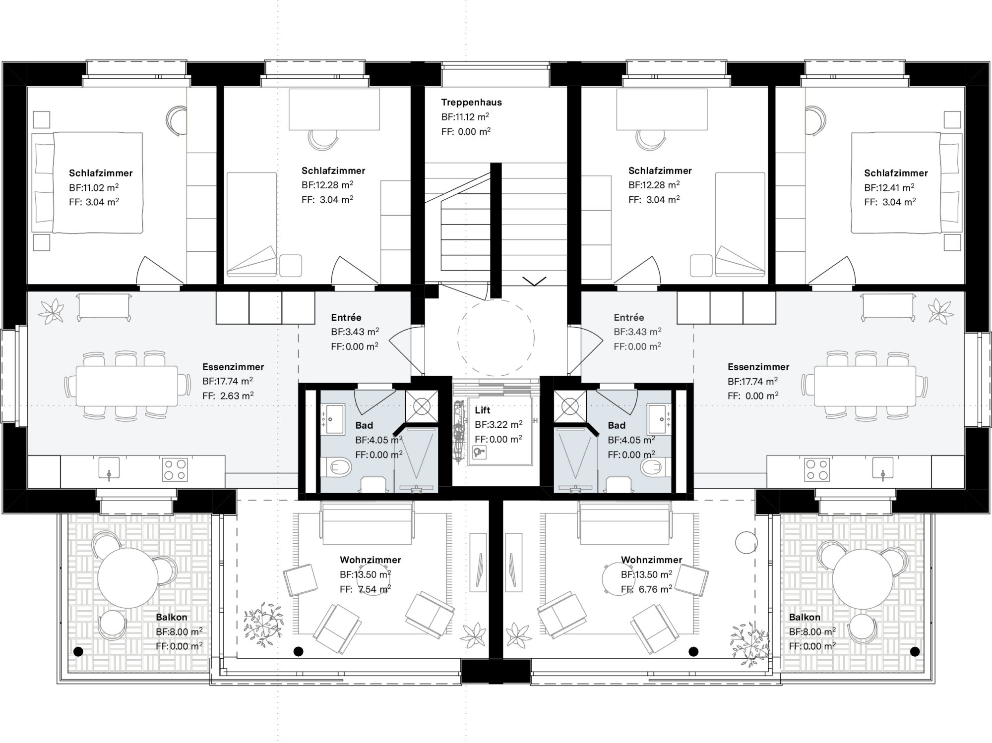
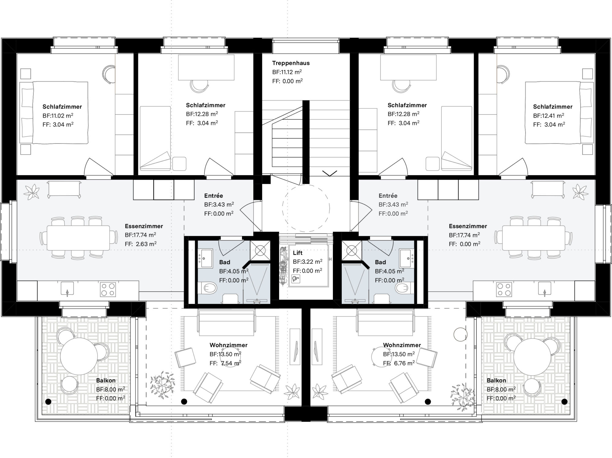
Wohnungen

Zusammen mit der Bauherrschaft wurde in einem fundierten Prozess verschiedene Grundriss-Layout‘s und Wohnungsgrössen diskutiert und gegeneinander abgewogen. Sechs attraktive 2.5 bis 4.0 Zi-Wohnungen und deren Flächeneffiziez vermochten zu überzeugen. Mit kompakter Grundfläche bieten sie ein vielfältiges Raumangebot. Die Schlafzimmer sind von der Strasse abgewandt Richtung Norden zum Innenhof hin angeordnet. Im Süden zeigt jede Wohnung ein grosszügig verglastes Wohnzimmer mit direktem Bezug zur Loggia und grossartigem Blick in die Bergwelt. Die parallel zur Strasse verlaufende Wohnschicht ist um zwei Tritte angehoben, sodass ein elegantes Hochparterre zur Bergstrasse hin ausgebildet wird. Nebst dem Einsichtschutz bietet die feine Höhengliederung einen räumlichen Mehrwert. Zwischen den nördlichen Schlafzimmern und dem südlichen Wohnraum liegt das Herz der Wohnung: Das Küchen- und Esszimmer als intimer „Zentrums-Raum“.