2024 11 16 FINAL Kopie

008
Zeilenhäuser Zaystrasse

Ort: Goldau, SZ
Status: In Bearbeitung - Ausführung
Mitarbeit: Marco Duarte, Georgios Kapsalidis, Florian Weber
Grösse: 1500 m² HNF
Jahr: 2021-2025
Bauherrschaft: Privat
 
 
Bauingenieure: Bettschart Ingenieure und Planer GmbH
Bauleitung: Markus Hürlimann
Bauphysik: Visplanum GmbH
Haustechnik HLKS: GF Energietechnik AG
Elektroplanung: Elektro Beutler AG

Mit einer klaren, linearen Setzung von zwei parallelen Zeilenhäusern wird entlang der typischen Quartierstrasse im Mittelland auf selbstverständliche Art und Weise verdichtet. Die ehemaligen, giebelständigen Einfamilienhäuser werden durch zwei Mehrfamilienhäuser ersetzt, die sich zur Strasse hin mit angemessen breiten Stirnfassaden zeigen. Erst in der Tiefe der Parzelle entwickeln diese sich zu klar erkennbaren Mehrfamilienhäusern mit entsprechenden Längen.

Die Quartierstrasse Zay liegt in einem ruhigen, ländlich geprägten Quartier in Gehdistanz zum Dorfzentrum Goldau an optimal erschlossener Lage zwischen Bahnhof und Autobahnausfahrt. Goldau profitiert einerseits vom Wirtschaftsraum Zug und andererseits von der einmaligen Berglandschaft rund um die Rigi.

Setzung

Das Quartier zeigt eine heterogene städtebauliche Struktur aus vier verschiedenen Zeitepochen, die nach dem Goldauer Felssturz und in den 70-er Jahren entstanden sind. Entlang der Zaystrasse reihen sich Arbeiterhäuser aus der Gründerzeit auf, welche noch heute ihren Charme versprühen und sich mit repräsentativen Fassaden zur Strasse hin ausrichten. Gleichzeitig befindet sich direkt an den Perimeter angrenzend ein langgezogener Industriebau, der sich grob in die quartiersübliche Masstäblichkeit eingliedert. Der Entwurf versucht zwischen diesen unterschiedlichen Welten zu vermitteln und bekennt sich gleichzeitig städtebaulich klar zu seiner Strassensituation: vorgelagerte Balkonschichten geben den Gebäuden ein Gesicht zur Strasse hin in Form einer zeitgenössischen Interpretation der giebelständigen Punktbauten entlang der Zaystrasse.

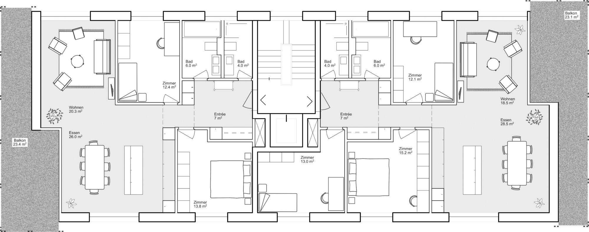
Wohnungen

Die zwölf identisch funktionierenden Wohnungen profitieren von 11m Gebäudelänge und dreiseitiger Ausrichtung. Dies ermöglicht im Verhältnis zur Netto-Wohnfläche (4.5 Zi- Whg:100m2/ 3.5 Zi-Whg: 85m2) effiziente und grosszügige Grundriss-Layouts, welche praktisch ohne Erschliessungsflächen auskommen. Man betritt die Wohnung in einem wohlproportionierten Entrée, welches über die Nasszellen natürlich belichtet wird. Auf eine kurze räumliche Verengung, von welcher aus die Schlafzimmer erschlossen werden, öffnet sich der grosszügige, dreiseitig orientierte Wohnraum. Dieser wird durch die Küche einerseits und die vorgelagerte Balkonschicht andererseits räumlich gegliedert. Eine über die gesamte Gebäudetiefe durchgehende Balkonschicht erweitert den Wohnraum und schafft die wichtige Pufferzone zum öffentlichen Raum. Die so geschaffene Intimität erlaubt grosse, bodentiefe Fenster, die den Blick ins Quartier und die innerschweizer Berglandschaft freigeben.