ARI LUC 220127 K02 PRINT

023
Siedlung Luchswiese

Ort: Schwamendingen, Stadt Zürich
Status: Projektwettbewerb im offenen Verfahren
Mitarbeit: Georgios Kapsalidis, Oliver Haab
Grösse: 42 Mio. BKP2
Jahr: 2022
Bauherrschaft: Amt für Hochbauten, Stadt Zürich
Landschaft: Claudia Wolfensberger Landschaftsarchitektur
Visualisierung: PONNIE Images

Die Vision einer Gartenstadt wurde in Schwamendingen auf der Grundlage des Überbauungsplanes nach A.H. Steiner in schützenswerter Konsequenz gebaut und bietet heute die Möglichkeit, uns klar zu werden was in diesem Kontext «Verdichtung» bedeutet. Die planmässig angelegten und grossflächigen Wohnquartiere der 1940/50er Jahre erscheinen verschwenderisch mit der kostbaren Ressource Boden umzugehen, besitzen jedoch eine charakteristische Stadtstruktur, welche aussenräumliche Qualitäten aufweist: Eine offene, organische Durchwegung und luftige Grünräume, welche die Baukörper umgeben.

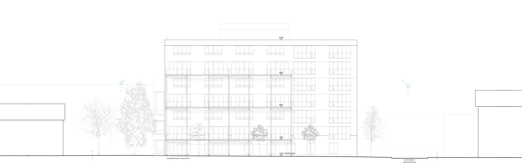
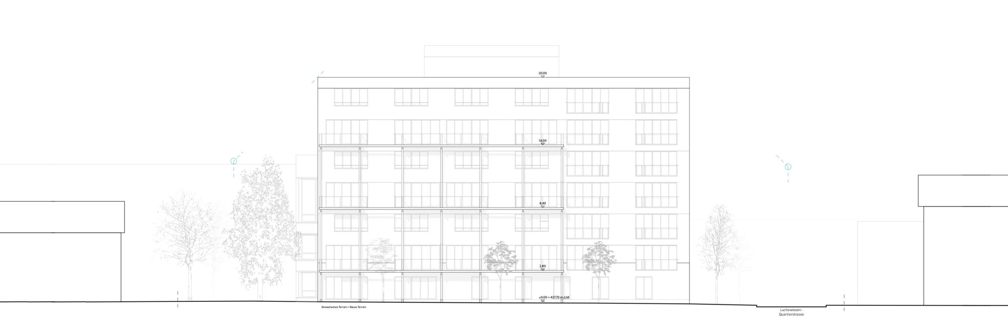
Setzung

Das städtebauliche Konzept sieht eine Reihung von vier Baukörpern entlang der Zubringerstrasse vor. Drei davon stirnseitig an die Strassenbaulinie gesetzt. Dieses Grundlayout verbindet den Entwurf und entspricht der länglichen, klaren Grundform der Parzelle. Das erste und dritte Volumen sind analog zu den bestehenden Zeilen ausgerichtet. Der Blick in die Tiefe und der umfliessende Grünraum ist dabei zentral. Die mittlere Scheibe hingegen wird im Lot rechtwinklig dazu gestellt. Daraus etablieren sich zwei differenzierte Aussenräume: Eine öffentlichere Platzsituation im Nordwesten mit einer klaren Adressierung der drei Wohngebäude und auf der anderen Seite der privatere Grünraum in gewohnt durchfliessender Art. Zum gemeinschaftlichen Vorplatz hin erhalten die drei Volumen eine plastische Differenzierung in Form der vertikalen Erschliessung. Das vertikale Element betont die Eingänge jeder einzelnen Scheibe und bindet sie optisch zusammen. Sie verorten die Siedlung am Ort und hierarchisieren die beiden Seiten: gemeinschaftlicher Vorplatz und umspülender Grünraum. Sonnerien, Breifkästen und Lift finden an diesem Platz gut auffindbar auf selbstverständliche Art zusammen.


Als Abschluss bindet sich der eigenständige Schulhausbau über seine Volumetrie nahtlos an den grossen Pausenplatz des bestehenden Schulhausareals. Die vier Volumen stehen aufgrund der gewünschten, aber auch sinnfälligen Ausnutzung entschieden näher beieinander als die bestehenden Zeilen. Durch den Erhalt möglichst vieler Bestandsbäume wird dieser baulichen Dichte mit einer kultivierten "Vegetationsdichte" begegnet und auf das Potential einer hohen sozialen Dichte gesetzt.

Typologie und Organisation

Das Erdgeschoss ist gemeinschaftlich genutzt. Grosszügige Velo-Hallen sind funktional direkt über die Zubringerstrasse erschlossen. Anschliessend befinden sich die Wasch-Salons entlang der Aussenraum-Laube angeordnet und als attraktive Orte der Begegnung gestaltet. Das zentral in der Mitte gelegene Volumen weist zudem den sozialen Mittelpunkt der Siedlung aus: den Gemeinschaftsraum.

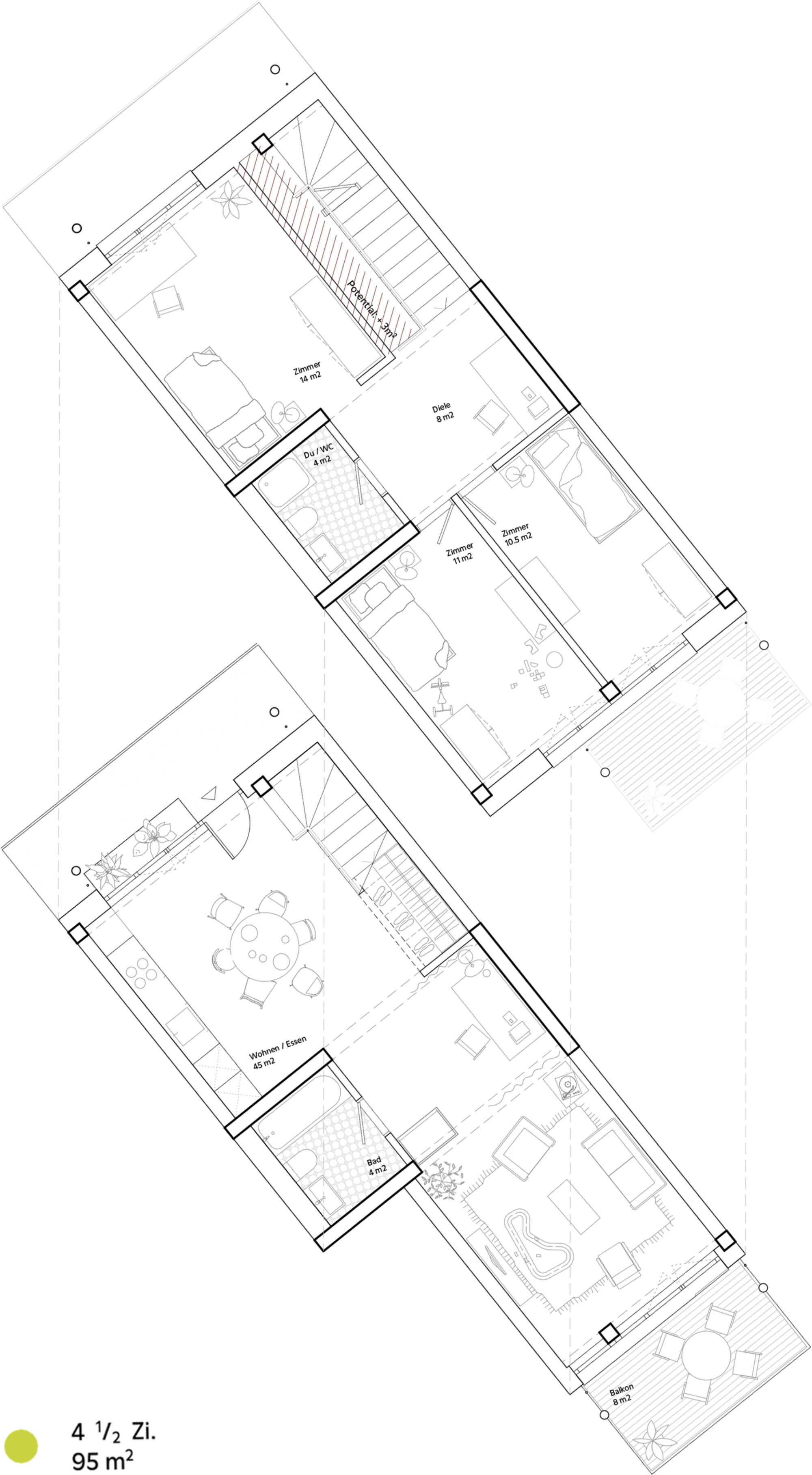
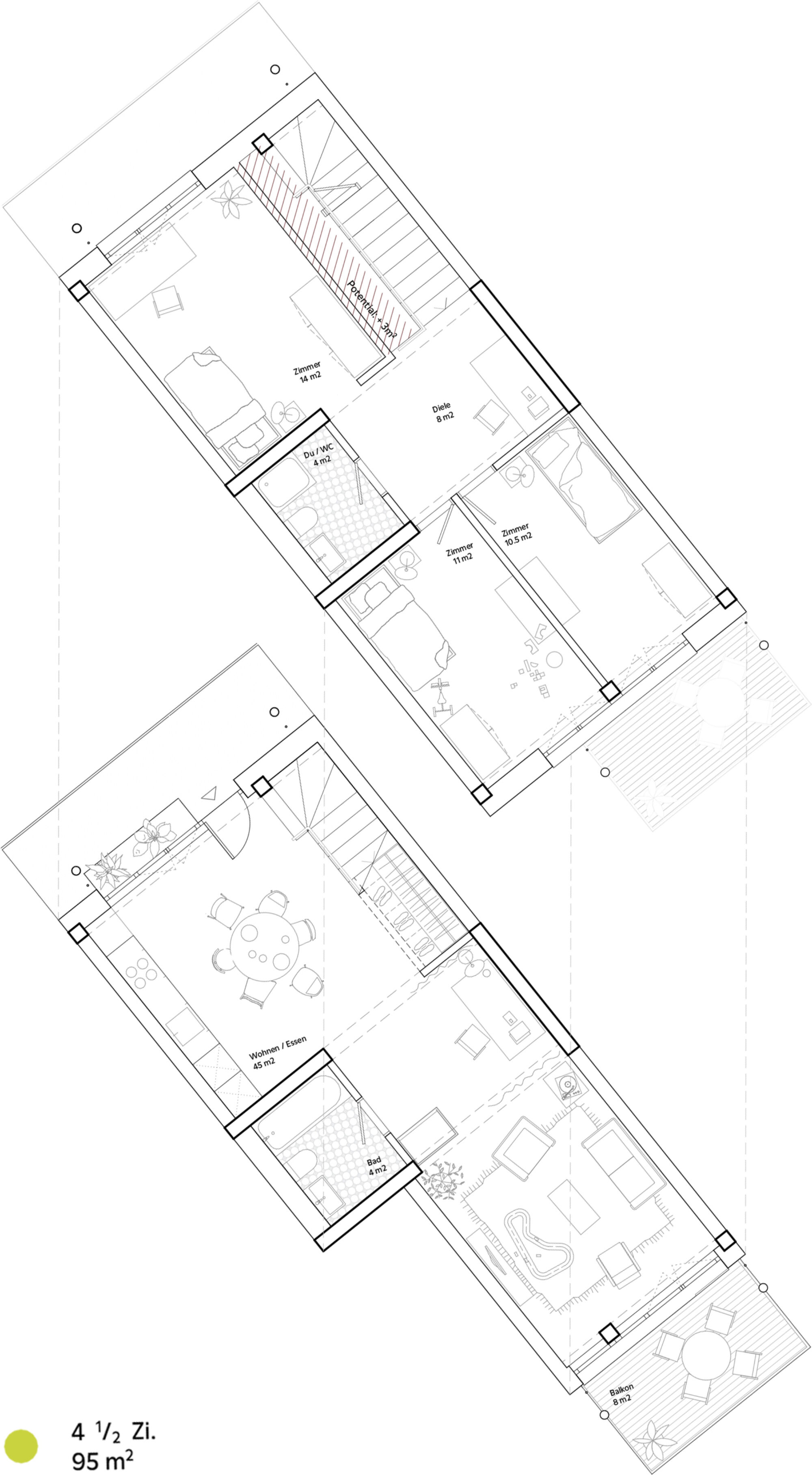
In den Obergeschossen setzt das differenzierte Wohnraumangebot auf zwei Typologien. Am Kopf der beiden quer zur Strasse stehenden Scheiben sind die Kleinwohnungen (1.5 bis 2.0 Zimmer-Wohnungen) direkt an der Vertikalerschliessung angeordnet. Entlang eines Laubenganges sind im Anschluss danach die Maisonette-Grosswohnungen für Familien organisiert. Die konsequente Kombination von Laubengang und Maisonette-Typologie erweist sich als Glücksfall. Während dem die ökonomische Effizienz des Laubengangs unbestritten ist, können seine Defizite - die mangelnde Intimität, respektive die Einsichtsproblematik - in Kombination mit dem Maisonette-Typus gelöst werden.

Wohnungen

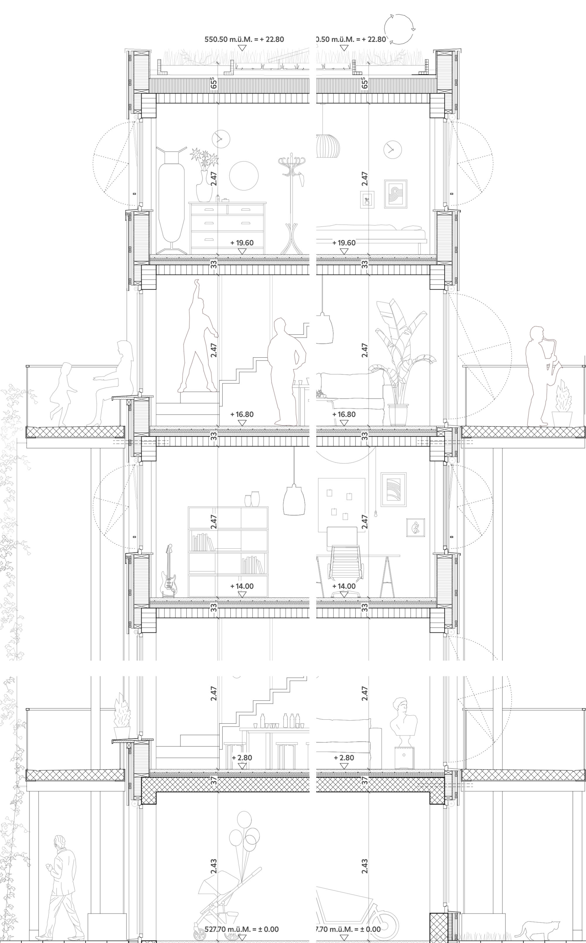
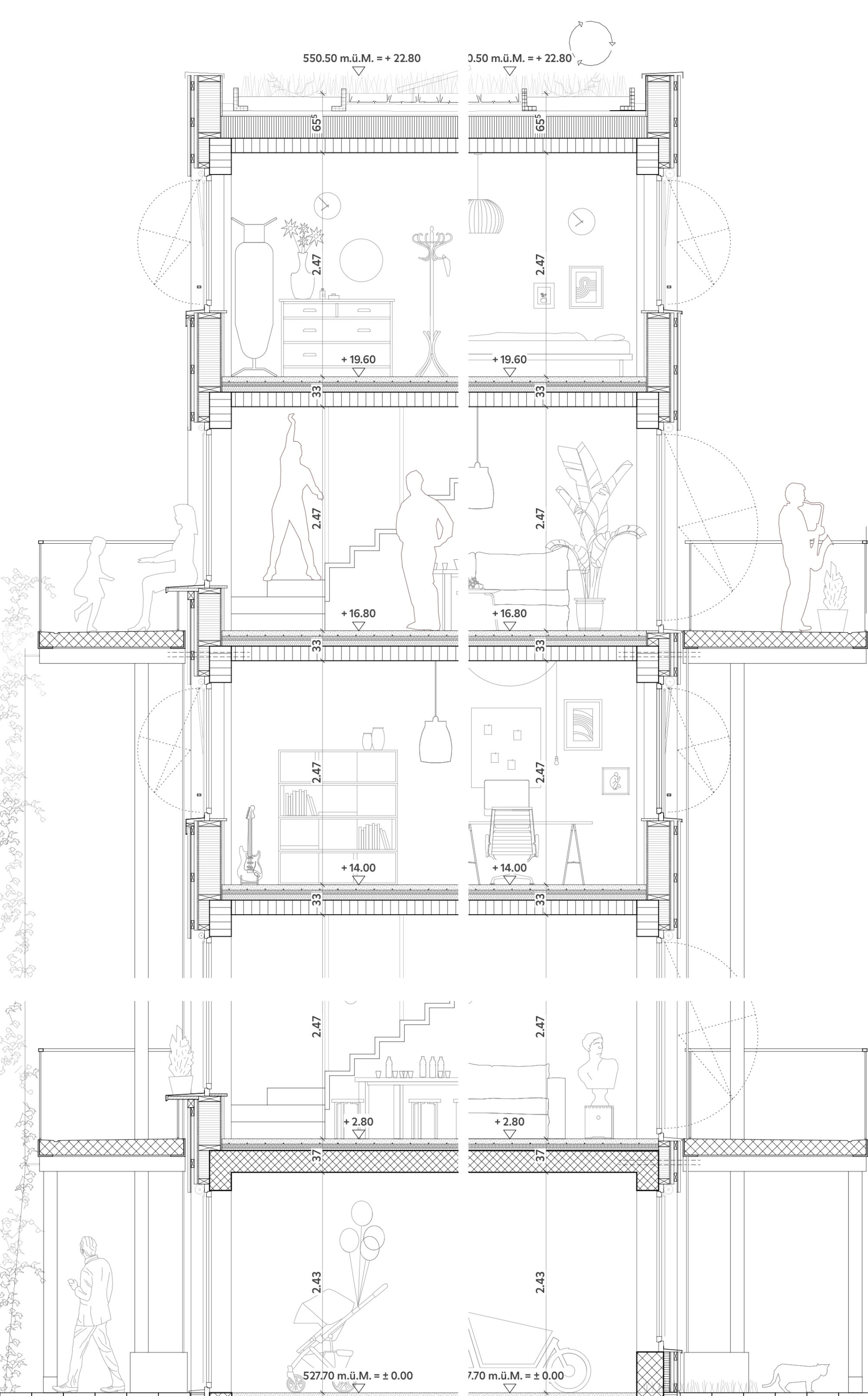
Die Maisonette-Wohnungen werten den Laubengang-Typus entschieden auf. Die Qualität eines Reihenhauses wird in die verdichtete Scheibe übertragen. Es gibt die "Tag-Ebene" auf Laubengangniveau und die intime "Nacht-Ebene". Alle Aussenräume profitieren somit von einer lichten Raumöhe von 5.3 Metern. Die Wohnungen gewinnen durch diese räumliche Grosszügigkeit an Licht und Atmosphäre und im Fassadenbild resultiert eine Leichtigkeit, welche zentral für das Selbstverständnis und das Lebensgefühl in dieser Siedlung wird.

Entlang der beiden Fassaden reihen sich in der dreischiffigen Grundrissanlage die Küchen-, Wohn- und die Individualräume (im oberen Geschoss) mit unterschiedlichen, auf die Balkenlage abgestimmten Breiten auf. Im mittleren, schmaleren Schiff liegen Erschliessungs- und Wohnbereiche sowie an den statisch relevanten T-förmigen Brettsperrholz-Körpern die Bäder. Die drei Schiffe werden durch die kräftige Holz-Tragstruktur räumlich gegliedert. Mit dem grosszügigen Eingangs-Küchen/Essraum und dem Stauraum unter der Treppe wurde auf ein hohes Mass an Alltagstauglichkeit geachtet.

Materialisierung und Ausdruck

In seinem Ausdruck vermittelt das Projekt zwischen der Direktheit einer klar gesetzten Wohnscheibe mit rationalem Raster und der Kraft eines selbstbewussten, zeitgenössischen Wohn-Holzbaus. Sämtliche Grundrisstypen sind aus den Fügungsprinzipen und den Spannweiten der Holzbauweise heraus entwickelt. Daraus leitet der Entwurf auch die Gestaltung der Fassade ab. Zum Beispiel das Achsmass der Stahlstützen bestehend aus einem kurzen Mass (1,4 m) und dem Langem (4,0 m). In diesem Rhythmus finden die Stützen paarweise an der Fassade zusammen und widerspiegeln die innere Struktur des Holz-Skelettbaus.


Der Charakter des Materials Holz wird im Innenraum der Wohnungen fein betont und die Qualität der klaren Fügung des zeitgenössischen Holzbau-Handwerks zum Ausdruck gebracht. Durch ihre klare und lineare Tragstruktur gewinnen die Gebäude eine starke Präsenz, von der auch der Innenraum profitiert. Und die einheitliche Farbigkeit verbindet die drei Volumen optisch zu einer Siedlung. Zu guter Letzt sorgen die horizontalen Rankpflanzen entlang der Stahlstruktur für eine wohnliche Atmosphäre und eine “weiche” Fassade zwischen den Wohnungen und der Gemeinschaft, welche den sozialen Prozessen einen angemessenen organischen Filter bietet.