Wohnhaus Bergstrasse 03

020
Wohnhaus Bergstrasse

Ort: Oberarth, SZ
Status: Gebaut
Mitarbeit: Georgios Kapsalidis, Florian Weber
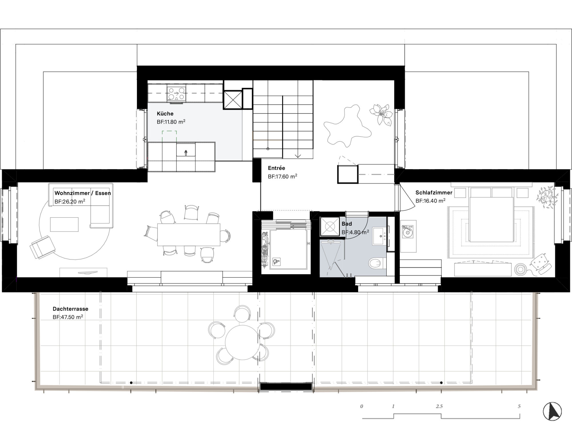
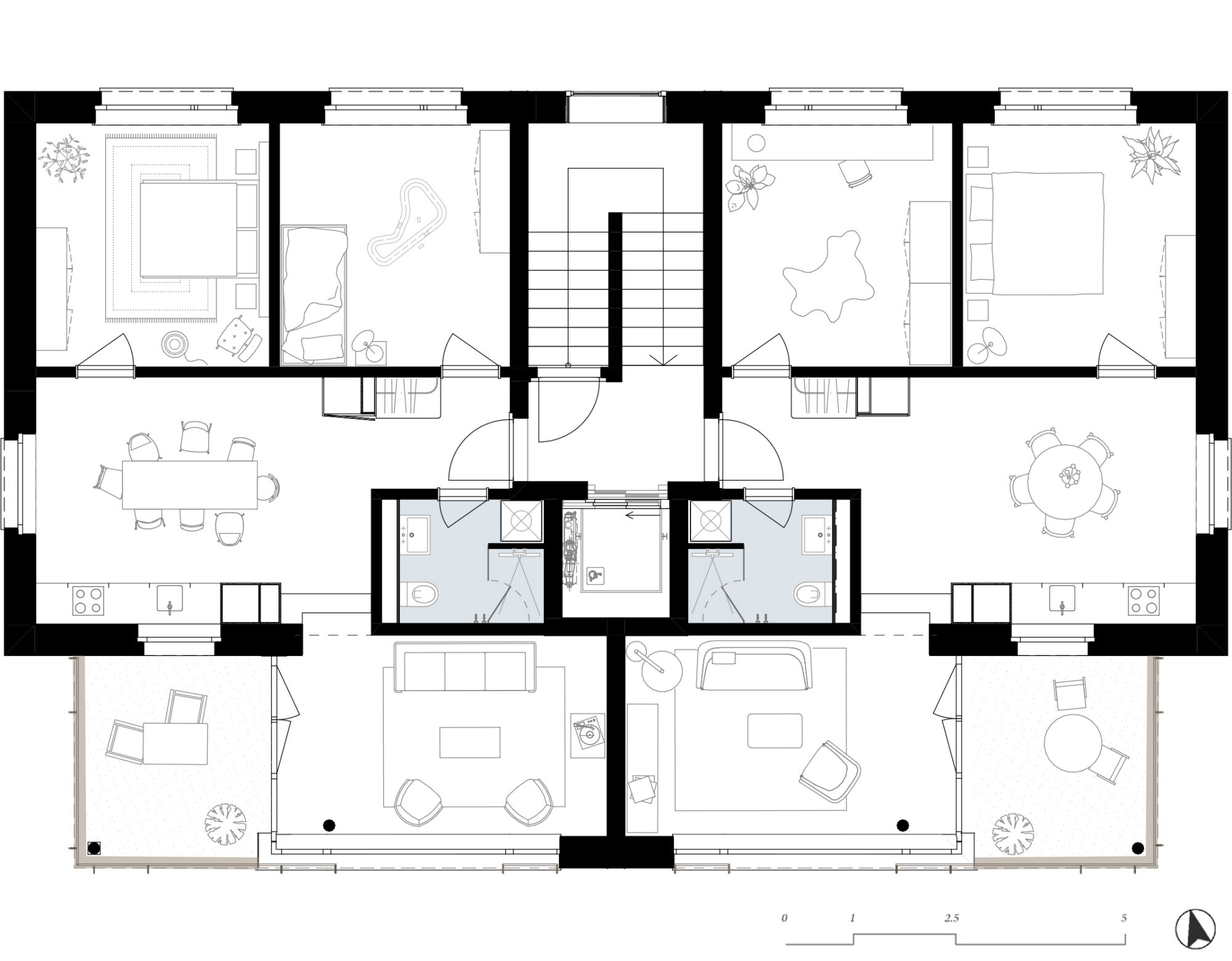
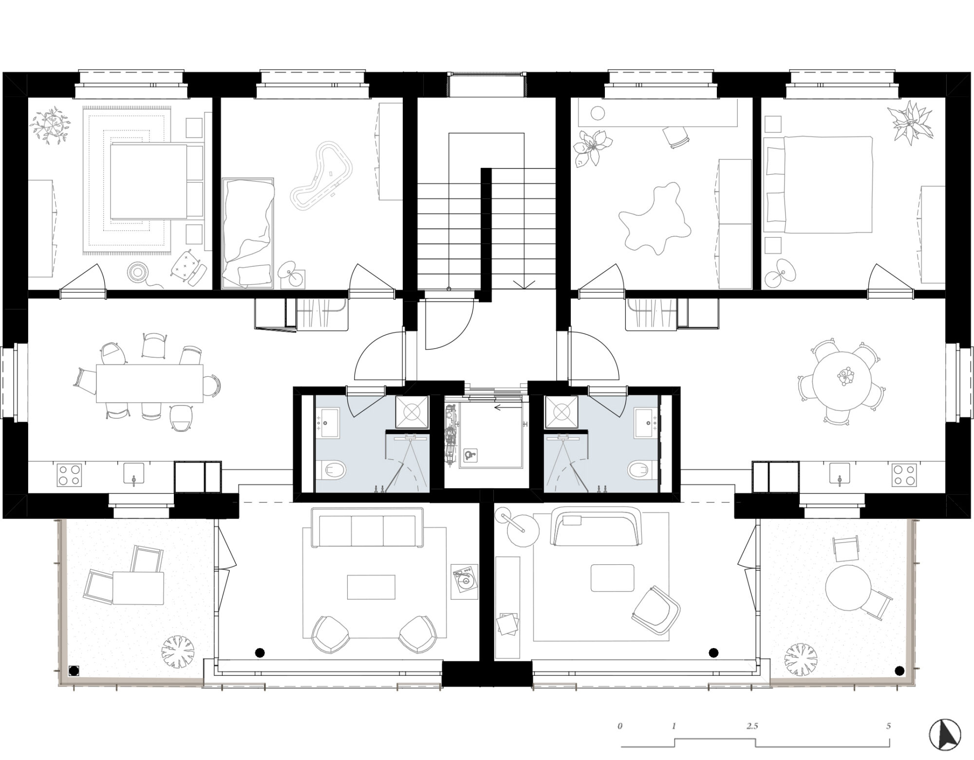
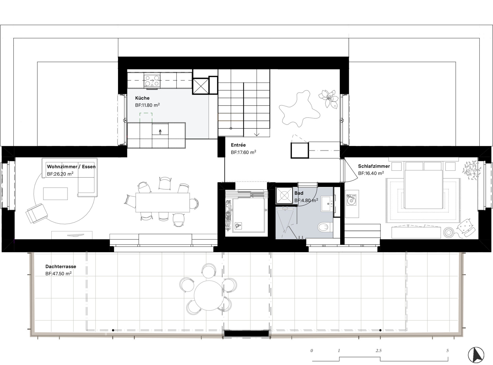
Grösse: 435 m² HNF
Jahr: 2022-2024
Bauherrschaft: Privat
Fotografie: Seraina Wirz
 
 
Bauingenieure: CES Bauingenieure AG
Bauleitung: Markus Hürlimann
Bauphysik: Visplanum GmbH
Haustechnik HLKS: GF Energietechnik AG
Elektroplanung: KMR Beratungs AG

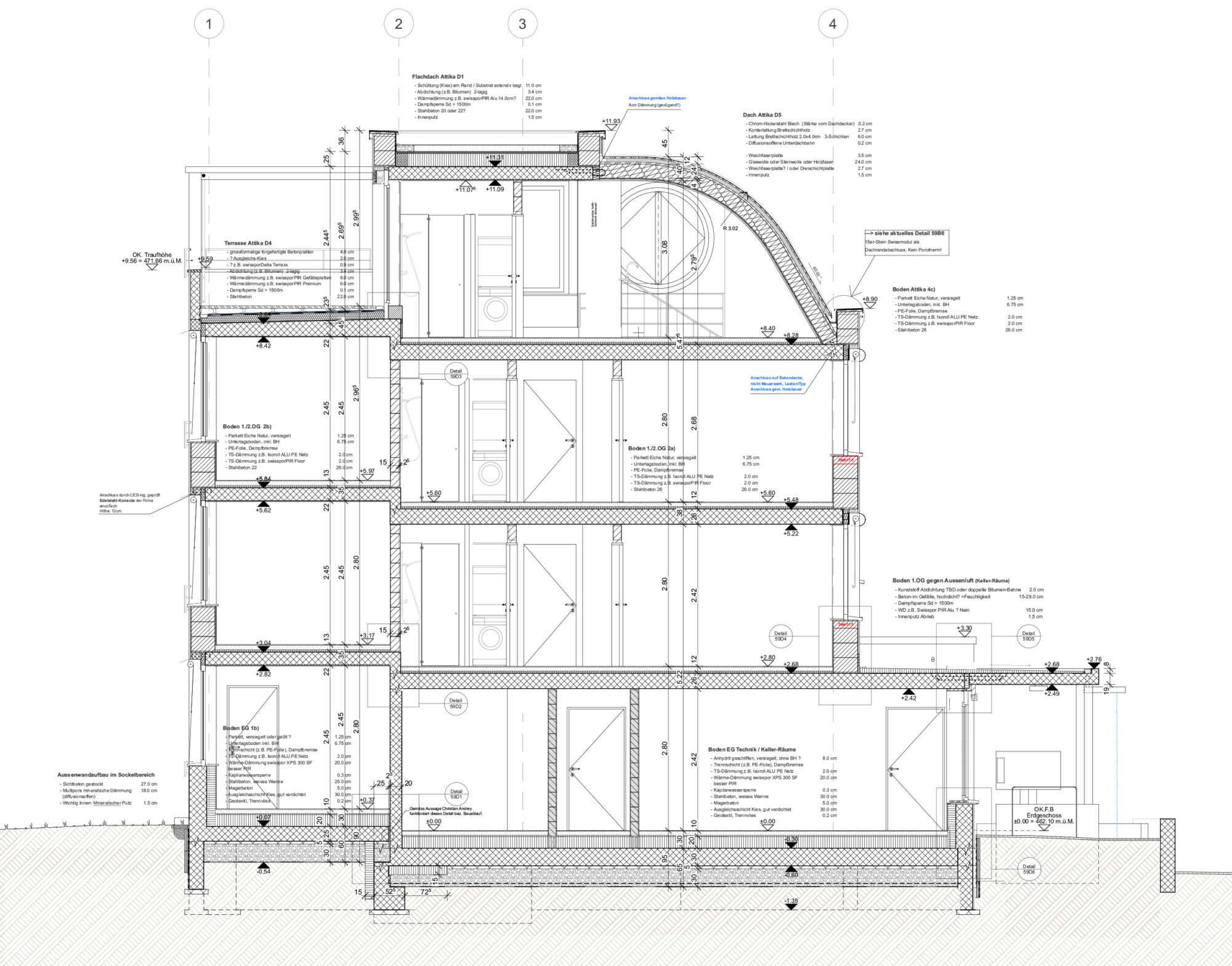
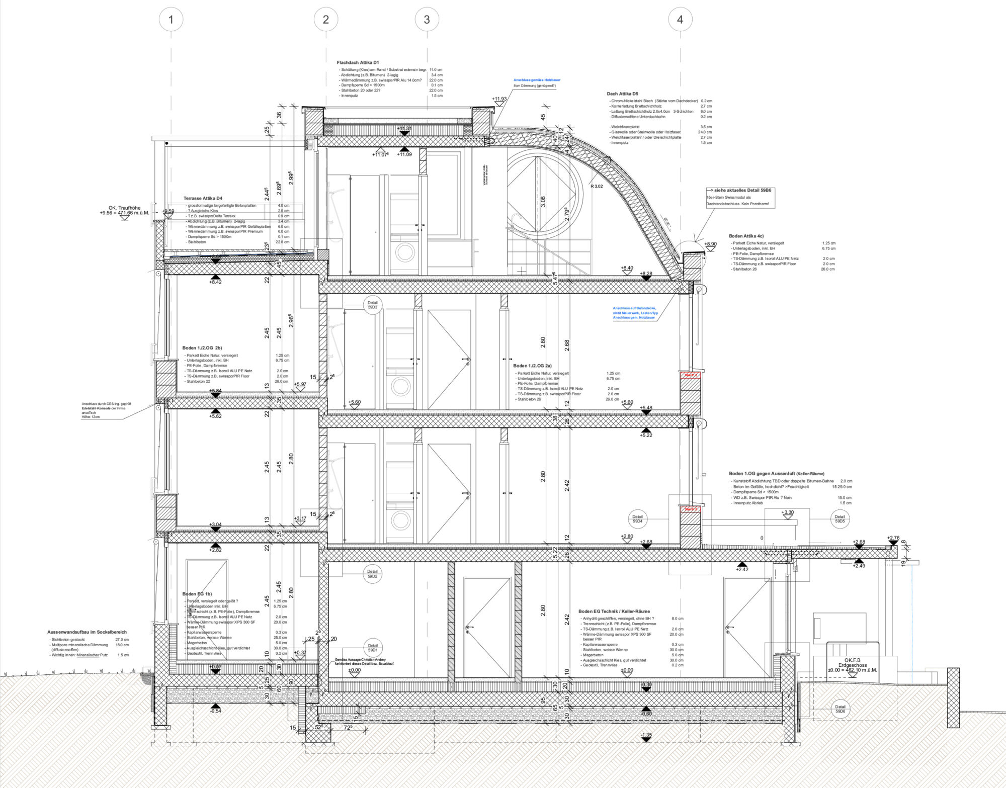
Steht ein Haus trauf- oder giebelseitig an der Strasse? Im ländlichen Kontext von Oberarth gibt die direkte Umgebung des neuen Wohnhauses darauf keine Antwort. Es bedarf eine eigene Vorstellung dazu zu entwickeln. Die Suche nach einem Baukörper, dessen klare Ausrichtung Stellung bezieht und dadurch den Strassen- als auch den rückwärtigen Raum stärkt, steht im Zentrum des Entwurfes. Als Quelle der Inspiration dienten in diesem Projekt Werke aus der klassischen Moderne.

Setzung

Basierend auf der Analyse der Bauten entlang der Bergstrasse bekennt sich der Entwurf mit einem ruhigen und selbstbewussten Volumen klar zur Strasse. Das Lärmschutzthema wird auf der grundrisslichen Ebene gelöst. Zusammen mit dem länglichen Volumen des östlichen Carports etabliert der neue Baukörper eine Komposition, welche trotz vollständiger Ausnutzung der sperrigen Parzelle angemessen wirkt. Das Attikageschoss ist integraler Bestandteil der Gesamtheit und unterstützt damit die städtebauliche Setzung.