Birchlen WB Strassen Visualisierung rr

012
Wohnzeile an der Birch

Ort: Dübendorf, ZH
Status: Wettbewerb auf Einladung
Zusammenarbeit: Fischer Architekten AG
Mitarbeit: Selin Samci, Marco Duarte
Grösse: 47 Eigentumswohnungen
Jahr: 2020
Bauherrschaft: BSS&M Real Estate AG
Visualisierung: Nightnurse Images AG
Landschaft: Usus Landschaftsarchitektur AG
 
 
Auszeichnung: 1. Rang

An der Nahtstelle von Industrie und Ausläufern der kleinmassstäblichen Kernzonenbebauung - eingebettet zwischen der Glatt und der Birchlenstrasse - liegt in Dübendorf das Baufeld für eine neue Wohnüberbauung. Die Herausforderung zwischen Gewerbeareal, Bestandsbauten und Flussraum 50 neue Wohnungen zu implementieren erforderte eine städtebauliche Setzung, die auf die unterschiedlichen Seiten intelligent reagieren kann. Das von der ARGE Fischer Architekten/Risi Duarte Architekten entwickelte Wettbewerbsprojekt wurde mit dem ersten Preis ausgezeichnet. Die Jury lobte den «sehr präzisen Städtebau, der sich bis hin zu den Wohnungen positiv auswirkt».

Setzung

Der Neubau befindet sich in einem ruhigen Quartier in Gehdistanz zum Zentrum Dübendorfs. Das Projekt antwortet mit einer eindeutigen Setzung entlang der Strasse, die den im Bestand sehr heterogenen Strassenraum sowie die Glatt als Naturraum stärkt. Die grosse Fassadenlänge wird durch die Staffelung des Baukörpers auf ein ortsübliches Mass heruntergebrochen und bildet damit einen massstäblich gut integrierten Link zwischen den unterschiedlichen Stadtstrukturen. Die Staffelung ermöglicht zudem die Aufnahme der zueinander versetzten Winkel von Glatt und Strasse und wird elegant zu einem innenräumlichen Mehrwert der Wohnungen.


Das Aussenraumkonzept basiert auf dem engen Zusammenwirken von Freiraum und Bebauung: Die Setzung ermöglicht eine grosszügige Grünanlage, ein Wohnen im Park mit direktem Bezug zum Gewässer. Die grösstmögliche, zusammenhängende Grünfläche entlang des Flusses ist der Gewinn für Alle. Anstelle privat abgegrenzter Aussenräume weisen die Wohnungen im EG privat genutzte Loggien und Terrassen auf.


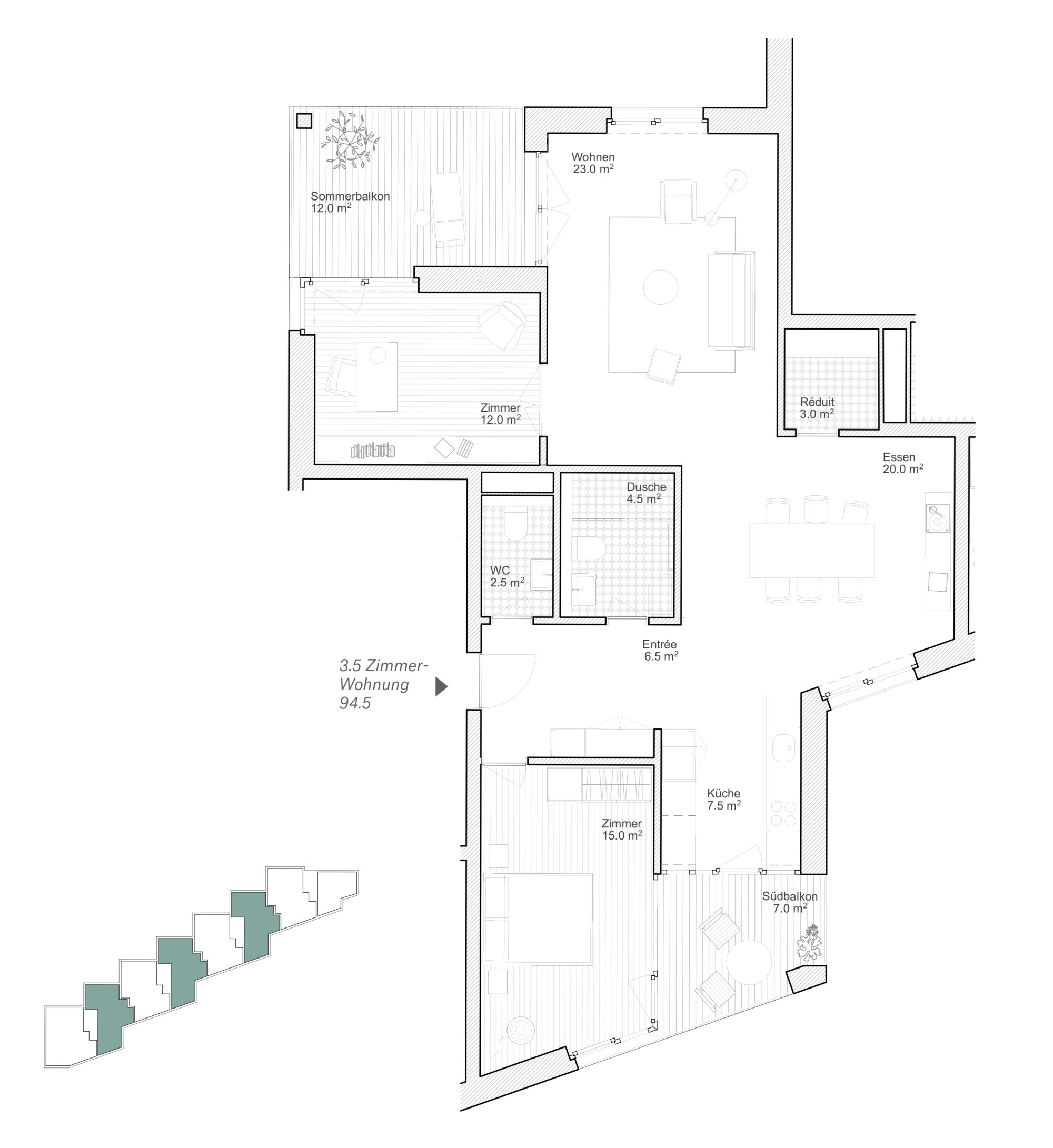
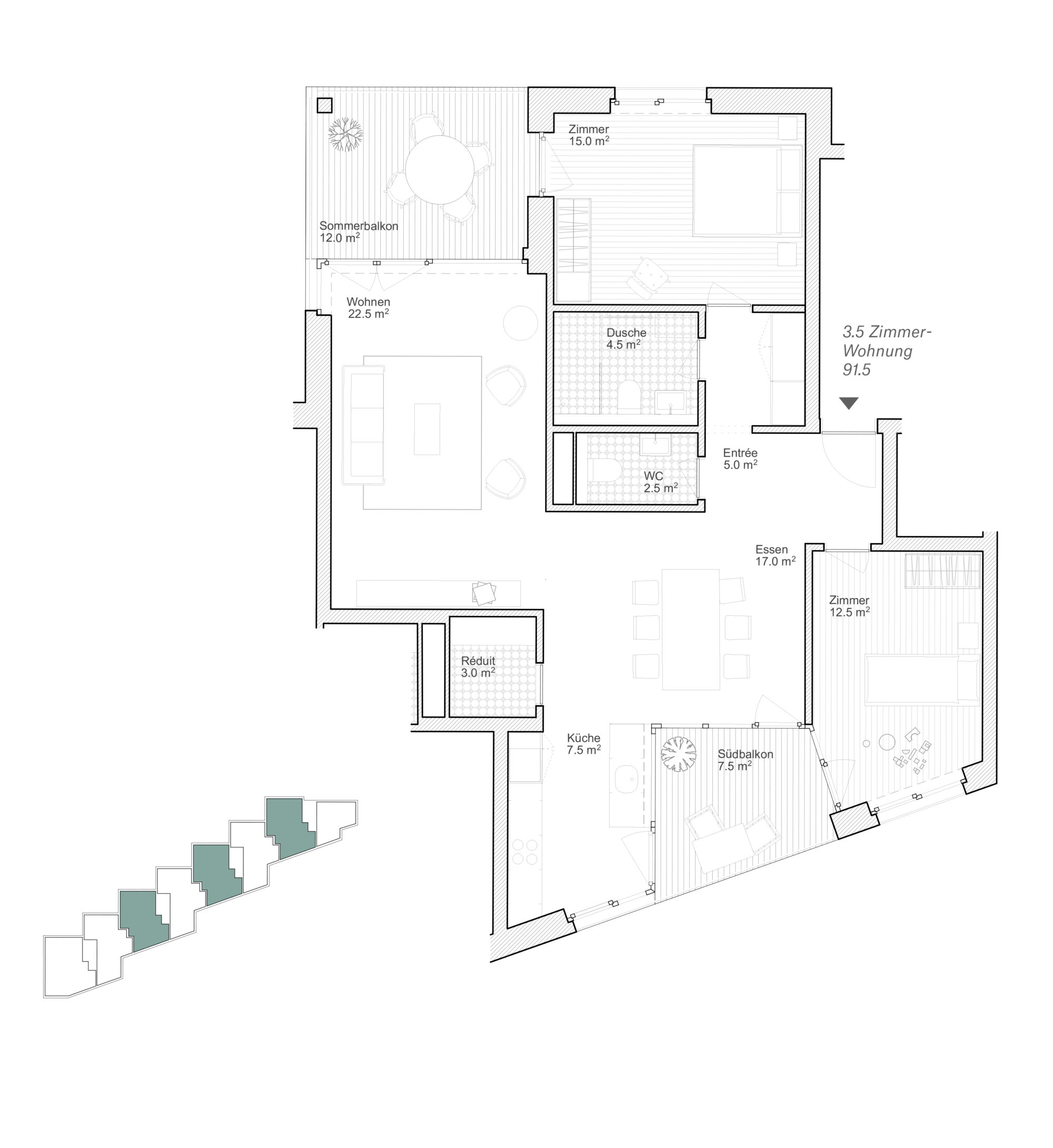
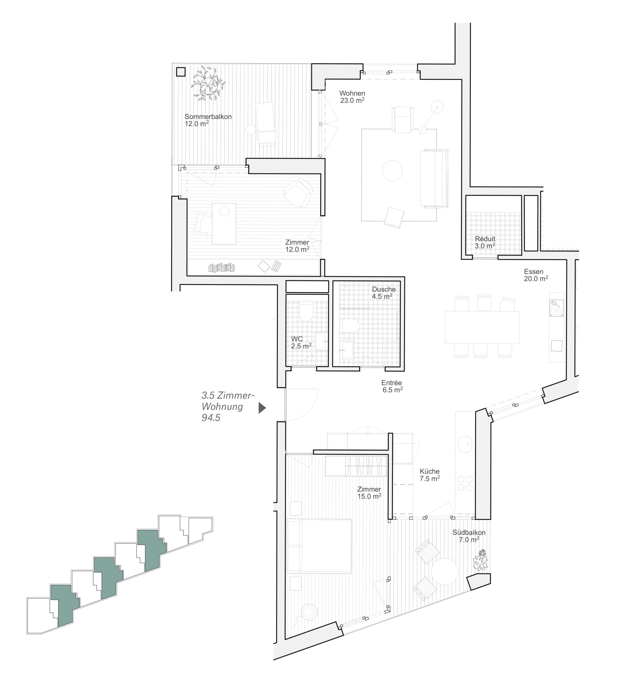
Die Wohnungen

Alle Wohnungen sind mindestens dreiseitig orientiert: Die Hauptausrichtungen sind jeweils die Glatt im Norden und die Mittagssonne im Süden. Durch die Staffelung der Fassaden öffnen sich die Wohn- und privaten Aussenräume aber auch gegen Osten und Westen.